
راهنمای کامل درایو اشنایدر ATV71 + خطاها، تنظیمات و عیبیابی
درایو Schneider Altivar ATV71 یکی از محصولات صنعتی پیشرفته شرکت اشنایدر الکتریک است که برای کنترل دقیق موتورهای AC در انواع کاربردهای صنعتی طراحی شده است. این درایو با فناوری کنترل برداری (Vector Control) و قابلیتهای گسترده در ارتباطات صنعتی، عملکردی پایدار، انعطافپذیر و هوشمند ارائه میدهد.
در این راهنما، شما با مراحل نصب، راهاندازی، تنظیمات اولیه، مشخصات ابعادی، شرایط محیطی، اتصالات کنترلی و نکات ایمنی درایو ATV71 آشنا خواهید شد.
تیم فنی الکترومارکت با تجربه گسترده در تأمین، نصب و پشتیبانی درایوهای صنعتی، آماده ارائه مشاوره تخصصی و خدمات نصب حرفهای به شماست.
معرفی درایو اشنایدر ATV71
درایو اشنایدر ATV71 مخصوص کنترل موتورهای آسنکرون و سنکرون دائممغناطیس طراحی شده و از ویژگیهای زیر برخوردار است:
-
محدوده توان از ۰٫۳۷ تا ۹۰ کیلووات
-
ولتاژ ورودی: تکفاز ۲۰۰–۲۴۰ ولت و سهفاز ۳۸۰–۴۸۰ ولت
-
قابلیت کنترل برداری بدون سنسور (SVC) و با انکودر (FVC)
-
رابط کاربری گرافیکی و LCD چندزبانه
-
پشتیبانی از پروتکلهای ارتباطی مختلف (Modbus، CANopen، Profibus، Ethernet و…)
-
کلاس حفاظتی تا IP54 با نصب فلنج ضد گردوغبار و رطوبت
-
استانداردهای ایمنی: EN 954-1، ISO 13849-1، SIL2
کاربردهای صنعتی درایو ATV71
درایو اشنایدر ATV71 یکی از قدرتمندترین اینورترهای صنعتی شرکت Schneider Electric است که برای کاربردهای سنگین طراحی شده است. این درایو به دلیل کنترل دقیق گشتاور، قابلیت کنترل برداری و پشتیبانی از شبکههای صنعتی در بسیاری از صنایع مورد استفاده قرار میگیرد.
مهمترین کاربردهای درایو ATV71 عبارتند از:
- نوار نقالههای صنعتی (Conveyor Systems)
- جرثقیل و سیستمهای بالابر
- وینچها و تجهیزات معدن
- اکسترودرهای پلاستیک
- میکسرها و همزنهای صنعتی
- ماشینآلات CNC
- سانتریفیوژها
- دستگاههای بستهبندی صنعتی
- پمپها و فنهای توان بالا
- صنایع فولاد، سیمان و نفت و گاز
دلیل استفاده از ATV71 در این کاربردها توانایی این درایو در ارائه کنترل دقیق سرعت و گشتاور، تحمل اضافه بار بالا و قابلیت کار در شرایط سخت صنعتی است.
📟 توضیحات کیپد درایو اشنایدر ATV71
پنل کیپد در ATV71 برای تعامل کاربر با درایو، انجام تنظیمات و عیبیابی طراحی شده است. در اینجا ویژگیها و روش استفاده مهم آن را بررسی میکنیم:
ویژگیها و عملکردهای کلیدی کیپد
-
منوی اصلی (MAIN MENU)
پس از روشن شدن، با استفاده از دکمههای ناوبری و انتخاب (ENT / Turn knob) میتوانید به منوی اصلی دسترسی پیدا کنید. -
سطوح دسترسی (Access Level)
برای اعمال تغییرات پیشرفته مانند تغییر تراز کنترل یا پارامترهای حساس، ابتدا باید سطح دسترسی را به “Expert” ارتقا دهید. برای این کار:-
وارد MAIN MENU شوید → گزینه ACCESS LEVEL را انتخاب کنید
-
سپس گزینه Expert را تأیید کنید
-
کلید ESC را فشار دهید تا به منوی اصلی بازگردید
-
-
سوئیچ بین کنترل با ترمینال و کیپد (T/K switch setting)
برای کنترل از طریق کیپد یا ورودیهای ترمینال، باید عملکرد یک کلید تابع (مانند F4) را به حالت T/K اختصاص دهید:-
از منوی DRIVE MENU وارد زیرمنوی COMMAND شوید
-
گزینه F4 Key assignment را پیدا کرده و مقدار آن را روی T/K تنظیم نمایید
-
-
انتخاب مرجع سرعت کیپد (Ref.1 Channel = HMI)
برای کنترل توسط کیپد، مرجع اول (Ref1) باید به HMI تنظیم شود:-
در منوی CTL (Command) گزینه Fr1 را به HMI / LCC تخصیص دهید
-
-
تنظیم جریان کاری موتور (Motor thermal current)
پس از ورود به منوی DRIVE MENU → SIMPLY START، کلید کیپد را بچرخانید تا گزینه Mot. therm. current نمایش داده شود، سپس مقدار مناسب جریان نامی موتور را وارد و تأیید کنید. -
عملیات عادی با کیپد
-
دکمه ESC برای بازگشت به منوی قبلی استفاده میشود
-
کلید چرخان (knob) برای جابجایی بین گزینهها
-
کلید ENT برای تأیید انتخاب
-
-
بازیابی پارامتر یا خواندن وضعیتها
با کیپد میتوانید مقادیر پارامترها را مشاهده کرده، مقادیر را تغییر دهید و وضعیت فعلی درایو (فرکانس خروجی، جریان، خطاها) را مانیتور کنید.
برای بررسی یک گزینه جمعوجور و پرکاربرد در رده درایوهای اشنایدر، میتوانید مقاله درایو اشنایدر ATV320 را ببینید.
مراحل نصب و راهاندازی درایو اشنایدر ATV71
مرحله ۱: دریافت و بررسی درایو
۱. تطابق شماره کاتالوگ
در زمان دریافت درایو، شماره کاتالوگ درجشده روی برچسب دستگاه را با شماره سفارش خرید خود مطابقت دهید تا از صحت مدل اطمینان حاصل کنید.
۲. بررسی بستهبندی و سلامت فیزیکی
بستهبندی درایو را باز کرده و آن را از نظر ظاهری بررسی کنید. در صورت مشاهده هرگونه آسیب، از نصب یا استفاده خودداری نمایید.
در چنین مواردی، با پشتیبانی فنی الکترومارکت تماس بگیرید تا مراحل بررسی و جایگزینی انجام شود.
⚠️ هشدار ایمنی:
در صورت آسیبدیدگی ظاهری، از روشن کردن یا نصب درایو پرهیز کنید. این کار میتواند منجر به آسیب تجهیزات یا خطر برقگرفتگی شود.
مرحله ۲: بررسی ولتاژ خط و شرایط تغذیه
پیش از نصب، ولتاژ شبکه تغذیه را بررسی کرده و مطمئن شوید در محدوده مجاز ولتاژ ورودی درایو قرار دارد.
بهعنوان مثال:
-
مدلهای تکفاز (ATV71H075M3 تا U75M3): ولتاژ ورودی ۲۰۰–۲۴۰ ولت
-
مدلهای سهفاز (ATV71HU15N4 تا D90Y): ولتاژ ورودی ۳۸۰–۴۸۰ یا ۵۰۰–۶۹۰ ولت
عدم تطابق ولتاژ میتواند باعث آسیب دائمی به مدار قدرت شود.
💡 نکته فنی:
در صورت تردید در انتخاب مدل مناسب، تیم فنی الکترومارکت میتواند در تعیین درایو سازگار با ولتاژ و جریان موتور شما مشاوره ارائه دهد.
⚠️ احتیاط:
قبل از روشن کردن درایو، از غیرفعال بودن ورودی PWR (Power Removal) اطمینان حاصل کنید تا از عملکرد ناخواسته موتور جلوگیری شود.
مرحله ۳: نصب فیزیکی درایو اشنایدر ATV71
نصب صحیح درایو یکی از مهمترین مراحل راهاندازی است.
۱. موقعیت نصب:
-
درایو باید بهصورت عمودی نصب شود تا تهویه بهدرستی انجام شود.
-
از نصب درایو در محیطهای دارای گردوغبار، بخار روغن یا گازهای خورنده خودداری کنید.
-
در صورت نیاز به حفاظت بیشتر، از محفظه با درجه IP54 استفاده کنید.
۲. فاصله تهویه:
برای گردش هوای مناسب، فاصله زیر را رعایت کنید:
-
۵۰ میلیمتر از طرفین
-
۱۰۰ میلیمتر از بالا و پایین
۳. دمای محیط:
دمای محیط مجاز کاری: تا ۵۰°C بدون افت توان
در دماهای بالاتر، استفاده از کیت فن خنککننده (Cooling Kit) توصیه میشود.
۴. نصب آپشنها:
در صورت استفاده از کارتهای I/O، کارتهای شبکه یا انکودر، نصب آنها باید قبل از سیمکشی انجام شود.
۵. مدلهای سنگینتر:
برای مدلهای با توان بالاتر (مانند ATV71HpppY)، از جرثقیل یا سیستم بالابر برای جابهجایی استفاده کنید. این مدلها حلقههای مخصوص حمل دارند.
💡 پیشنهاد الکترومارکت:
در صورت تمایل به نصب صنعتی و ایمن، کارشناسان ما میتوانند عملیات نصب، کابلکشی و تست اولیه را در محل انجام دهند.
راهنمای راهاندازی سریع درایو اشنایدر ATV71 (Quick Start)
برای راهاندازی اولیه درایو ATV71 میتوانید مراحل زیر را انجام دهید:
مرحله اول: ورود به منوی راهاندازی
از طریق کیپد درایو وارد منوی Simply Start شوید.
مرحله دوم: تنظیم پارامترهای موتور
اطلاعات پلاک موتور را وارد کنید:
- UnS = ولتاژ نامی موتور
- FrS = فرکانس موتور (معمولاً 50Hz)
- nCr = جریان نامی موتور
- nPr = توان موتور (kW)
- COS = ضریب قدرت موتور
مرحله سوم: تنظیم روش فرمان
در منوی COMMAND پارامترهای زیر را تنظیم کنید:
- tCC = حالت فرمان (2-wire یا 3-wire)
- Fr1 = مرجع سرعت (AI1 یا HMI)
مرحله چهارم: تنظیم زمان شتاب و توقف
- ACC = زمان افزایش سرعت
- DEC = زمان کاهش سرعت
مرحله پنجم: تست راهاندازی
پس از انجام تنظیمات میتوانید با استفاده از دکمه RUN روی کیپد یا ورودی دیجیتال LI1 موتور را راهاندازی کنید.
🌡️ شرایط نصب و دمای کاری
برای عملکرد بهینه درایو ATV71، نکات زیر باید رعایت شود:

-
نصب عمودی: درایو باید با زاویه حداکثر ±۱۰ درجه از حالت عمودی نصب شود.
-
فاصله ایمنی:
-
حداقل ۵۰ میلیمتر در دو طرف (برای تهویه مناسب).
-
حداقل ۱۰۰ میلیمتر در بالا و پایین برای گردش هوا.
-
حداقل ۱۰ میلیمتر فضای آزاد در جلوی درایو.
-
-
عدم مجاورت با منابع گرما: درایو را در نزدیکی المنتها یا منابع حرارتی نصب نکنید.
-
نوع نصب:
-
Type A: با کاور حفاظتی و فضای جانبی مناسب.
-
Type B: نصب درایوها بهصورت کنارهم با کاور برداشتهشده (حفاظت IP20).
-
Type C: مشابه Type B با تهویه بیشتر.
-

📊 نمودار کاهش توان (Derating Curves)
درایوهای ATV71 بسته به دمای محیط، فرکانس سوئیچینگ و نوع نصب ممکن است نیاز به کاهش توان نامی داشته باشند.
-
در دمای ۴۰°C: توان نامی ۱۰۰٪ حفظ میشود.
-
در دمای ۵۰°C: توان خروجی کاهش یافته و نیاز به کیت فن کنترل است.
-
در دمای ۶۰°C: استفاده از کیت فن الزامی است.


🖥️ نصب ترمینال نمایشگر گرافیکی (Graphic Display Terminal)
ترمینال نمایشگر گرافیکی درایو ATV71 با کد VW3A1101 بهصورت ماژول جداگانه عرضه میشود و امکان نمایش، تنظیم، و کنترل کامل پارامترهای درایو را فراهم میکند.
درایوهایی که شماره کاتالوگ آنها به حرف Z ختم میشود (مانند ATV71H075M3Z)، فاقد ترمینال گرافیکی هستند و باید این ماژول را بهصورت جداگانه تهیه کرد.

🔹 مراحل نصب ترمینال
-
بررسی وضعیت درایو:
پیش از نصب، اطمینان حاصل کنید که درایو خاموش است و ولتاژ باس DC به کمتر از ۴۵ ولت رسیده است.
(LED قرمز «شارژ خازن» باید خاموش باشد.) -
اتصال فیزیکی:
-
درایوهای سری ATV71 دارای درگاه مخصوص ترمینال گرافیکی در پنل جلویی هستند.
-
نمایشگر را بهآرامی در محل اتصال فرو کنید تا صدای “کلیک” قفل مکانیکی شنیده شود.
-
نصب در حالت روشن بودن درایو نیز مجاز است، اما توصیه میشود در حالت خاموش انجام شود.
-
-
جداسازی ترمینال:
-
برای جدا کردن نمایشگر، ابتدا مطمئن شوید که کنترل درایو از طریق HMI غیرفعال است.
-
سپس نمایشگر را بهآرامی از محل اتصال بیرون بکشید.
-
-
اتصال از راه دور (Remote Mounting):
-
در صورت نیاز، میتوانید نمایشگر را بهصورت جدا از درایو نصب کنید.
-
برای این کار از کابلهای مخصوص ارتباطی VW3A1104Rxx (با طولهای ۱ تا ۳ متر) استفاده کنید.
-
پایهی نصب دیواری (Mounting Kit VW3A1104Rxx) برای این حالت الزامی است.
-

🔹 مشخصات عملکردی ترمینال گرافیکی
| ویژگی | توضیحات |
|---|---|
| صفحهنمایش | LCD گرافیکی با نور پسزمینه |
| منوها | نمایش ساختار درختی برای دسترسی به پارامترها |
| کلیدها | START / STOP / JOG / ENTER / ESC / جهتها |
| زبانها | پشتیبانی از چند زبان از جمله انگلیسی و فرانسوی |
| حافظه داخلی | ذخیره و انتقال تنظیمات به درایوهای دیگر |
| تغذیه | از طریق درایو (بدون نیاز به منبع جداگانه) |
| اتصال و جداسازی در حالت روشن | مجاز است، بدون خطر برای مدار |
⚙️ نکته: هنگام جدا کردن نمایشگر در حالت روشن، پارامترهای فعال (مانند سرعت مرجع یا حالت RUN) تغییر نمیکنند، اما توصیه میشود در حالت توقف انجام شود.
🔹 مزایای استفاده از ترمینال گرافیکی
-
تنظیم سریع پارامترها و مشاهده مقادیر واقعی (Real-Time)
-
قابلیت ذخیره و انتقال تنظیمات بین چند درایو
-
نمایش خطاها، هشدارها و وضعیتهای عملیاتی با جزئیات
-
مناسب برای نصب تابلوئی یا روی درب کابین (با کابل ارتباطی)
🔹 کدهای سفارش مرتبط
| کد محصول | توضیح |
|---|---|
| VW3A1101 | ترمینال گرافیکی گرافیکی اصلی (Graphic Display Terminal) |
| VW3A1104Rxx | کابل ارتباطی برای نصب از راه دور (طول ۱، ۲ یا ۳ متر) |
| VW3A1104RxxK | کیت نصب دیواری برای ترمینال گرافیکی |
📘 توصیه: برای عملکرد پایدار و جلوگیری از خطاهای ارتباطی، از کابلهای اصلی Schneider Electric استفاده کنید و مسیر کابل را از مدارهای قدرت جدا نگه دارید.
🔴 موقعیت LED شارژ خازن (Position of the Charging LED)
درایو ATV71 دارای یک LED قرمز مخصوص شارژ خازن (Capacitor Charge Indicator) است که در پنل جلویی، کنار ترمینالهای کنترل قرار دارد. این LED وضعیت ولتاژ باس DC داخلی را نشان میدهد و برای ایمنی در زمان سرویس یا نصب بسیار حیاتی است.

⚠️ هشدار ایمنی قبل از سرویس یا سیمکشی
قبل از هرگونه کار (نصب کارت آپشن، سیمکشی، یا باز کردن درایو)، مراحل زیر را دقیقاً رعایت کنید:
-
منبع تغذیه را کاملاً قطع کنید.
مطمئن شوید که ورودی برق از شبکه جدا شده است. -
منتظر بمانید تا LED قرمز خاموش شود.
LED قرمز نشاندهنده شارژ خازنهای باس DC است.
پس از خاموش کردن درایو، حداقل ۱۵ دقیقه صبر کنید تا خازنها تخلیه شوند. -
ولتاژ باس DC را اندازهگیری کنید.
با ولتمتر، ولتاژ بین ترمینالهای PA/+ و PC/- را بررسی کنید.
ولتاژ باید کمتر از ۴۵ ولت DC باشد. -
در صورت وجود ولتاژ باقیمانده:
با تیم فنی الکترومارکت یا نمایندگی مجاز اشنایدر تماس بگیرید.
از تعمیر یا باز کردن درایو خودداری کنید.
⚠️ توجه: تا زمانی که LED قرمز روشن است، قطعات داخلی درایو دارای ولتاژ بالا هستند و تماس با آنها میتواند منجر به شوک الکتریکی شدید یا مرگ شود.
🧩 نکته فنی
-
LED شارژ خازن معمولاً در بالای کارت ترمینال کنترلی نصب شده و در حالت کار عادی روشن نمیماند.
-
در هنگام روشن بودن درایو یا بلافاصله پس از قطع برق، LED فعال میشود تا هشدار دهد ولتاژ باس هنوز وجود دارد.
-
این LED به مدار تخلیه خودکار خازنها متصل است و پس از پایین آمدن ولتاژ به محدوده ایمن، بهطور خودکار خاموش میشود.
مرحله ۴: اتصالات الکتریکی درایو ATV71
۱. اتصال به موتور:
کابلهای موتور را به ترمینالهای U/T1، V/T2، W/T3 متصل کنید.
۲. اتصال به منبع تغذیه:
ورودی برق AC را به ترمینالهای R/L1، S/L2، T/L3 وصل کنید.
۳. اتصال زمین حفاظتی (PE):
زمین حفاظتی باید با سطح مقطع حداقل ۱۰ میلیمتر مربع یا معادل آن (AWG 6) باشد. مقاومت زمین ≤ ۱ اهم.
۴. جداسازی کابلها:
کابلهای قدرت و کنترل را در مسیرهای جداگانه عبور دهید تا تداخل الکترومغناطیسی (EMI) کاهش یابد.
⚠️ هشدار:
قبل از انجام هرگونه اتصال، برق را کاملاً قطع کرده و از تخلیه کامل خازنهای DC اطمینان حاصل کنید.
برای تهیه انواع تجهیزات، میتوانید به بخش فروشگاه الکترومارکت مراجعه نمایید.
ابعاد فیزیکی و شرایط نصب درایو اشنایدر ATV71
درایو ATV71 در مدلها و ابعاد مختلفی عرضه میشود. جدول زیر ابعاد تقریبی مدلها را نشان میدهد:
| مدل درایو | توان نامی (kW) | ولتاژ ورودی | ارتفاع (mm) | عرض (mm) | عمق (mm) | وزن تقریبی (kg) |
|---|---|---|---|---|---|---|
| ATV71H037M3 | 0.37 | 200–240V تکفاز | 184 | 142 | 152 | 1.6 |
| ATV71HU15N4 | 1.5 | 380–480V سهفاز | 222 | 142 | 152 | 2.3 |
| ATV71HU30N4 | 3 | 380–480V سهفاز | 260 | 142 | 172 | 3.4 |
| ATV71HD11N4 | 11 | 380–480V سهفاز | 340 | 211 | 172 | 5.2 |
| ATV71HD18N4 | 18.5 | 380–480V سهفاز | 470 | 211 | 203 | 9.2 |
| ATV71HD30N4 | 30 | 380–480V سهفاز | 540 | 275 | 230 | 16.8 |
| ATV71HD45N4 | 45 | 380–480V سهفاز | 630 | 310 | 245 | 21.5 |
| ATV71HD75N4 | 75 | 380–480V سهفاز | 780 | 328 | 290 | 33.2 |
| ATV71HD90Y | 90 | 500–690V سهفاز | 840 | 350 | 310 | 36.8 |
💡 نکات نصب:
-
از نصب در فضای بسته بدون تهویه اجتناب کنید.
-
جهت جریان هوا از پایین به بالا باید آزاد باشد.
-
در صورت نصب چند درایو در کنار هم، فاصله افقی حداقل ۵ سانتیمتر را بین آنها حفظ کنید.
📘 نکته: در صورت افزودن کارتهای توسعه I/O یا کارت ارتباطی، ضخامت بخش جلویی (c, c1, c2) افزایش مییابد.
سیمکشی، ترمینالها و EMC در درایو ATV71
⚙️ سیمکشی درایو ATV71
درایو ATV71 دارای دو بخش اصلی سیمکشی است:
-
بخش قدرت (Power Section)
-
بخش کنترل (Control Section)
هر دو بخش باید مطابق استانداردهای ایمنی نصب شوند تا از عملکرد صحیح و طول عمر بالا اطمینان حاصل شود.
🧩 بخش قدرت (Power Wiring)
۱. اتصال زمین حفاظتی (PE):
-
تمام مدلها باید مستقیماً به زمین حفاظتی متصل شوند.
-
سطح مقطع کابل زمین حداقل ۱۰ میلیمتر مربع (AWG 6) یا برابر با سطح مقطع کابل تغذیه باشد.
-
مقاومت زمین باید کمتر از ۱ اهم باشد.
۲. اتصالات ورودی برق:
-
ترمینالهای R/L1، S/L2، T/L3 برای ورودی AC سهفاز استفاده میشوند.
-
برای مدلهای تکفاز، تنها R/L1 و S/L2 استفاده میشود.
-
جهت حفاظت، از کلید اتوماتیک یا فیوز سریع نوع gG استفاده کنید.
۳. اتصال موتور:
-
موتور را به ترمینالهای U/T1، V/T2، W/T3 متصل کنید.
-
کابل موتور باید دارای شیلد (Screened Cable) باشد و شیلد در هر دو سمت به زمین متصل شود.
-
در طولهای بالای ۲۰ متر، استفاده از فیلتر dv/dt یا فیلتر سینوسی (Sine Filter) ضروری است.
۴. اتصال مقاومت ترمزی:
-
برای مدلهایی که از Dynamic Braking پشتیبانی میکنند، مقاومت را بین ترمینالهای PB و PA/+ متصل کنید.
-
اگر از مقاومت خارجی استفاده نمیکنید، ترمینال PB را باز بگذارید.
-
انتخاب مقدار و توان مقاومت در بخش جدول انتخاب مقاومت ترمز آورده میشود.

⚡ نکات ایمنی برقکشی
-
پیش از باز کردن ترمینالها، برق را بهطور کامل قطع کنید.
-
پس از خاموش کردن درایو، حداقل ۱۵ دقیقه صبر کنید تا LED قرمز شارژ خازن خاموش شود.
-
ولتاژ بین پایانههای PA/+ و PC/- باید کمتر از ۴۵ ولت DC باشد.
⚠️ هشدار خطر برقگرفتگی:
دستکاری درایو در هنگام باقی ماندن شارژ خازن ممکن است منجر به شوک شدید و آسیب دائمی شود.
برای آشنایی با انواع دیگر درایوهای موجود در بازار، مقالات راهنمای فارسی را در وبلاگ ما مطالعه کنید.
🎛️ بخش کنترل (Control Wiring)
درایو ATV71 دارای مجموعهای از ترمینالهای قابل برنامهریزی برای فرمانها، سیگنالهای آنالوگ و دیجیتال است.
مشخصات عمومی ترمینالها
| ویژگی | مقدار |
|---|---|
| حداکثر سطح مقطع سیم | ۲٫۵ میلیمتر مربع (AWG 14) |
| گشتاور سفت کردن پیچ | ۰٫۶ نیوتنمتر (۵٫۳ پوند-اینچ) |
| نوع ترمینالها | پیچدار با فنر داخلی |
| ولتاژ ورودیهای منطقی | ۲۴ ولت DC (حداکثر ۳۰ ولت) |
| تأخیر واکنش | ۲ ± ۰٫۵ میلیثانیه |
ترمینالهای کنترل اصلی
| ترمینال | عملکرد | توضیح فنی |
|---|---|---|
| R1A, R1B, R1C | رله خروجی قابل برنامهریزی R1 | حداکثر ۵ آمپر در ۲۵۰ ولت AC |
| R2A, R2C | رله خروجی دوم | برای سیگنال وضعیت خطا یا Run |
| +10 | منبع ۱۰ ولت DC برای پتانسیومتر | حداکثر ۱۰ میلیآمپر |
| AI1+, AI1- | ورودی آنالوگ ولتاژ ±۱۰V | مرجع سرعت اصلی |
| AI2 | ورودی آنالوگ دوم (۰–۱۰V یا ۴–۲۰mA) | قابل تنظیم از طریق منو |
| AO1 | خروجی آنالوگ (۰–۱۰V یا ۴–۲۰mA) | برای مانیتورینگ سرعت یا جریان |
| LI1 تا LI6 | ورودیهای دیجیتال | فرمانهای Start/Stop، جهت، ریست، انتخاب سرعت |
| +24 / 0V | تغذیه ورودیهای منطقی داخلی | حداکثر جریان ۲۰۰mA |
| PWR | ورودی عملکرد ایمنی Power Removal | ایمنی عملکرد موتور |
💡 نکته:
ورودیهای LI میتوانند بهصورت PNP (Source) یا NPN (Sink) تنظیم شوند. انتخاب حالت از طریق سوئیچ SW1 انجام میشود.

🔌 کارتهای آپشن (Option Cards)
درایو ATV71 از کارتهای توسعه مختلف پشتیبانی میکند که هر کدام قابلیت خاصی به دستگاه اضافه میکنند.
انواع کارتهای آپشن:
| نوع کارت | شماره فنی | کاربرد |
|---|---|---|
| کارت I/O منطقی | VW3A3201 | افزایش ورودی و خروجیهای دیجیتال |
| کارت I/O توسعهیافته | VW3A3202 | افزودن ورودیهای آنالوگ و فرکانس |
| کارت ارتباطی | VW3A3307, VW3A3310 و… | پشتیبانی از شبکههای صنعتی Modbus, Profibus, Ethernet |
| کارت انکودر افزایشی | VW3A3401 تا VW3A3407 | دریافت فیدبک سرعت موتور |
| کارت سینوس-کسینوس | VW3A3408 | برای انکودرهای سنسوردار دقیق |
| کارت SSI یا Hiperface | VW3A3409, 3411 | برای موتورهای سنکرون |
💡 نکته فنی:
کارتها باید زمانی نصب شوند که LED شارژ خازن خاموش باشد و درایو از برق جدا شده باشد.


🧰 نصب صفحات و گیرههای EMC
صفحات EMC (Electromagnetic Compatibility) برای کاهش نویزهای الکترومغناطیسی و تضمین سازگاری با استانداردهای صنعتی به کار میروند.
۱. اجزای EMC شامل:
-
صفحه EMC برای کابلهای قدرت
-
صفحه EMC برای کابلهای کنترل
-
گیرههای EMC برای کارتهای آپشن
| مدل درایو | Δb (mm) | Δb (in) |
|---|---|---|
| ATV71H037M3 تا U40M3 | 55 | 2.17 |
| ATV71HU55M3 تا D18N4 | 65 | 2.56 |
| ATV71HD22N4 تا D90Y | 120 | 4.72 |

💡 توصیه:
در کابلکشی، مسیر کابلهای قدرت، کنترل و ارتباط را کاملاً جدا نگه دارید.
فاصله پیشنهادی بین مسیرهای کابل:
-
۸ سانتیمتر برای کانال فلزی
-
۳۱ سانتیمتر برای کانال پلاستیکی
⚙️ توصیههای نصب EMC و زمین مشترک
-
همه تجهیزات (درایو، موتور، محافظ کابل) باید روی یک پتانسیل زمین مشترک HF قرار گیرند.
-
شیلد کابلها در هر دو سمت به زمین متصل شود.
-
در صورت استفاده از لوله یا کانال فلزی، از پیوستگی الکتریکی کامل اطمینان حاصل کنید.
-
مسیر کابل تغذیه و کابل موتور را تا حد امکان جدا نگه دارید.
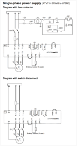
🧠 دیاگرامهای اتصال استاندارد درایو ATV71
منبع تغذیه تکفاز (۲۰۰–۲۴۰V)

- اتصالات برق: R/L1، S/L2
-
خروجی موتور: U/T1، V/T2، W/T3
-
ورودی کنترل: LI1 تا LI6
-
توصیه: گزینهی IPL (فقدان فاز ورودی) را در تنظیمات غیرفعال کنید تا درایو بهدرستی کار کند.
منبع تغذیه سهفاز (۳۸۰–۴۸۰V)

-
چوک خط (Line Choke) برای مدلهای بالای ۴۰ آمپر الزامی است.
-
در کاربردهای بالابری، استفاده از مدار Power Removal الزامی است.
-
در سیستمهای SIL2، از دکمه توقف اضطراری دوکنتاکتی استفاده شود.
💡 نکته نهایی در نصب و سیمکشی:
تمام ورودیهای کنترلی باید در حالت غیرفعال (۰) باشند قبل از اینکه درایو روشن شود.
در غیر این صورت ممکن است موتور بهصورت ناگهانی راهاندازی شود.
🧮 جدول انتخاب مقاومت ترمز درایو اشنایدر ATV71
درایو ATV71 دارای مدار داخلی کنترل ترمز دینامیکی (Dynamic Braking) است. برای استفاده از این قابلیت، باید مقاومت ترمز با مقدار اهم (Ω) و توان (W) مناسب انتخاب شود تا انرژی بازگشتی موتور به شکل حرارت تخلیه گردد.
| مدل درایو | ولتاژ (V) | توان موتور (kW) | حداقل مقاومت مجاز (Ω) | توان مقاومتی پیشنهادی (W) | مدل مقاومت ترمز پیشنهادی الکترومارکت |
|---|---|---|---|---|---|
| ATV71H037M3 | 200–240 | 0.37 | 180 | 150 | ER150-180Ω/150W |
| ATV71H075M3 | 200–240 | 0.75 | 120 | 200 | ER200-120Ω/200W |
| ATV71HU15N4 | 380–480 | 1.5 | 150 | 300 | ER300-150Ω/300W |
| ATV71HU30N4 | 380–480 | 3 | 90 | 400 | ER400-90Ω/400W |
| ATV71HD11N4 | 380–480 | 11 | 47 | 800 | ER800-47Ω/800W |
| ATV71HD18N4 | 380–480 | 18.5 | 33 | 1500 | ER1500-33Ω/1.5kW |
| ATV71HD30N4 | 380–480 | 30 | 22 | 2000 | ER2000-22Ω/2kW |
| ATV71HD45N4 | 380–480 | 45 | 15 | 3000 | ER3000-15Ω/3kW |
| ATV71HD75N4 | 380–480 | 75 | 10 | 4000 | ER4000-10Ω/4kW |
| ATV71HD90Y | 500–690 | 90 | 8.2 | 5000 | ER5000-8.2Ω/5kW |
💡 نکات فنی:
-
مقاومت ترمز باید بهگونهای انتخاب شود که در زمان توقف کامل موتور، حداکثر انرژی بازگشتی را تحمل کند.
-
مقدار مقاومت کمتر از حد مجاز میتواند منجر به خطای OBF یا OCF (Overcurrent Fault) شود.
-
استفاده از مقاومتهای صنعتی با تهویه مناسب یا ماژولهای ترمز خارجی توصیه میشود.
-
برای انتخاب دقیقتر، میتوانید با تیم فنی الکترومارکت تماس بگیرید تا مقدار مقاومتی بر اساس گشتاور بار و فرکانس کاری محاسبه شود.
💡نکته مهم: انتخاب مقاومت ترمز مناسب برای درایو شما حیاتی است. الکترومارکت مجموعهای از مقاومتهای ترمز با توانها و مقاومتهای مختلف را برای تضمین عملکرد ایمن و بهینه ارائه میدهد. برای مشاوره و انتخاب مقاومت ترمز مناسب، میتوانید با کارشناسان ما در الکترومارکت تماس بگیرید یا به صفحه انتخاب مقاومت ترمز در وبلاگ الکترومارکت مراجعه کنید.
برای مشاهده و انتخاب انواع مقاومت ترمز آلومینیومی، به صفحه مقاومت ترمزهای آلومینیومی مراجعه کنید.
🔄 جدول تنظیم مجدد به حالت کارخانه (Factory Reset Guide)
درایو ATV71 دارای گزینهی FCS – Factory Setting Restore است که تمام پارامترها را به مقادیر پیشفرض کارخانه بازمیگرداند.
برای بازنشانی تنظیمات، دو روش وجود دارد:
روش اول – از طریق صفحهنمایش گرافیکی (HMI Terminal):
-
وارد منوی [CONF] Configuration شوید.
-
گزینهی [FULL] Full setting را انتخاب کنید.
-
وارد [FCS] Factory Setting Restore شوید.
-
مقدار را روی YES تنظیم و تأیید کنید.
-
درایو را خاموش و مجدداً روشن کنید.
روش دوم – از طریق نرمافزار SoMove یا Modbus:
-
پارامتر FCS را به مقدار 1 تغییر دهید و سپس دستور راهاندازی مجدد ارسال کنید.
| پارامتر | توضیح | مقدار پیشفرض کارخانه |
|---|---|---|
| ACC | زمان شتاب | 3s |
| DEC | زمان کاهش سرعت | 3s |
| FrS | مرجع فرکانس | AI1 |
| CHCF | حالت کنترل | Std |
| tCC | نوع موتور | Asynchronous |
| nCr | توان نامی موتور | بر اساس مدل |
| UnS | ولتاژ نامی موتور | بر اساس مدل |
| ItH | جریان نامی موتور | بر اساس مدل |
| PWR | ورودی ایمنی فعال | No |
| FCS | بازنشانی تنظیمات کارخانه | 0 (غیرفعال) |
⚠️ هشدار:
بازنشانی تنظیمات باعث حذف تمام پیکربندیهای کاربر (از جمله پارامترهای کنترل، مرجع سرعت، ارتباطات شبکه و محدودیتها) میشود.
قبل از انجام ریست فکتوری، از ذخیره فایل پارامترها در کارت حافظه یا نرمافزار SoMove اطمینان حاصل کنید.
🧰 جدول جامع عیبیابی و کدهای خطای درایو اشنایدر ATV71 (Fault Codes & Troubleshooting)
درایو ATV71 بهصورت خودکار خطاهای الکتریکی، مکانیکی و نرمافزاری را شناسایی کرده و با کدهای مشخص نمایش میدهد. جدول زیر شامل مهمترین خطاها، علت بروز و روش رفع آنهاست.
| کد خطا | نام خطا | علت احتمالی | روش رفع مشکل |
|---|---|---|---|
| APF | خطای برنامه کاربردی | خرابی کارت Controller Inside | به مستندات کارت مراجعه کنید |
| bLF | خطای کنترل ترمز | جریان آزاد شدن ترمز به مقدار لازم نرسیده | اتصال موتور و درایو بررسی شود، سیمپیچ موتور چک شود، تنظیمات Ibr و Ird بررسی گردد |
| CnF | خطای شبکه ارتباطی | خرابی ارتباط در کارت ارتباطی | بررسی سیمکشی، بررسی نویز الکترومغناطیسی، بررسی Timeout |
| COF | خطای ارتباط CANopen | قطع ارتباط در شبکه CANopen | بررسی باس ارتباطی، بررسی Timeout |
| EPF1 | خطای خارجی (ورودی دیجیتال) | خطا از یک دستگاه خارجی ارسال شده | دستگاه خارجی بررسی و ریست شود |
| EPF2 | خطای خارجی از شبکه | خطا از طریق شبکه ارتباطی ایجاد شده | بررسی علت خطا در شبکه |
| FCF2 | باز ماندن کنتاکتور خروجی | کنتاکتور خروجی بسته نشده | بررسی کنتاکتور و مدار فیدبک |
| LCF | خطای کنتاکتور ورودی | درایو روشن نشده با وجود گذشت زمان LCt | بررسی کنتاکتور، سیمکشی و اتصال شبکه برق |
| LFF2 | قطع سیگنال 4‑20mA در AI2 | از دست رفتن سیگنال آنالوگ | بررسی سیمکشی ورودی آنالوگ |
| LFF3 | قطع سیگنال 4‑20mA در AI3 | قطع سیگنال مرجع | بررسی اتصال ورودی آنالوگ |
| LFF4 | قطع سیگنال 4‑20mA در AI4 | از دست رفتن سیگنال مرجع | بررسی سیمکشی ورودی |
| ObF | اضافه ترمز | ترمز ناگهانی یا بار زیاد | افزایش زمان Deceleration، استفاده از مقاومت ترمز |
| OHF | دمای بالای درایو | دمای برد قدرت یا ماژول فاز بالا رفته | بررسی تهویه، دمای محیط، بار موتور |
| OLF | اضافه بار موتور | جریان موتور بیش از حد مجاز | بررسی بار موتور و تنظیمات حفاظت حرارتی |
| OPF1 | قطع یک فاز خروجی | قطع یکی از فازهای خروجی درایو | بررسی کابل بین موتور و درایو |
| OPF2 | قطع سه فاز موتور | موتور متصل نیست یا توان موتور کم است | بررسی اتصال موتور، تنظیم پارامتر OPL |
| OSF | افزایش ولتاژ شبکه | ولتاژ ورودی بیش از حد مجاز | بررسی ولتاژ شبکه برق |
| OtF1 | دمای بالای سنسور PTC1 | سنسور حرارتی موتور فعال شده | بررسی بار موتور و تهویه |
| OtF2 | دمای بالای سنسور PTC2 | افزایش دمای موتور | بررسی سنسور و خنککاری |
| OtFL | دمای بالای PTC در ورودی LI6 | تشخیص دمای بالا از ورودی LI6 | بررسی سنسور PTC |
| PtF1 | خطای سنسور PTC1 | سنسور قطع یا اتصال کوتاه شده | بررسی سیمکشی سنسور |
| PtF2 | خطای سنسور PTC2 | خرابی سنسور دما | بررسی سنسور |
| PtFL | خطای PTC در ورودی LI6 | سنسور قطع یا اتصال کوتاه | بررسی سیمکشی |
| SCF4 | اتصال کوتاه IGBT | خرابی قطعات قدرت | اجرای تست DIAGNOSTICS و تعمیر درایو |
| SCF5 | اتصال کوتاه موتور | اتصال کوتاه در خروجی درایو | بررسی کابل موتور و عایقبندی |
| SLF1 | خطای ارتباط Modbus | قطع ارتباط در شبکه Modbus | بررسی کابل و تنظیمات شبکه |
| SLF2 | خطای ارتباط با نرمافزار PC | مشکل ارتباط با نرمافزار | بررسی کابل ارتباطی |
| SLF3 | خطای ارتباط HMI | ارتباط با صفحه نمایش قطع شده | بررسی اتصال ترمینال |
| SrF | خطای Timeout گشتاور | زمان عملکرد کنترل گشتاور تمام شده | بررسی تنظیمات و مکانیزم |
| SSF | محدودیت گشتاور یا جریان | درایو وارد حالت محدودیت شده | بررسی مشکلات مکانیکی |
| tJF | دمای بالای IGBT | درایو بیش از حد گرم شده | کاهش فرکانس سوئیچینگ و بررسی بار |
خطاهای مربوط به پیکربندی درایو اشنایدر ATV71
| کد خطا | نام خطا | علت | روش رفع |
|---|---|---|---|
| CFF | خطای تنظیمات | کارت آپشن تغییر کرده یا حذف شده | بازگرداندن تنظیمات کارخانه |
| CFI | تنظیمات نامعتبر | تنظیمات ناسازگار بارگذاری شده | بارگذاری تنظیمات صحیح |
| dLF | تغییر ناگهانی بار | تغییر غیرعادی بار | بررسی سیستم مکانیکی |
| HCF | خطای تطابق کارت | کارت درایو تعویض شده | وارد کردن رمز Pairing |
| PHF | قطع فاز ورودی | یکی از فازهای برق ورودی قطع شده | بررسی فیوزها و برق سه فاز |
| USF | افت ولتاژ | ولتاژ ورودی پایین | بررسی ولتاژ شبکه |
نکات مهم در عیبیابی درایو اشنایدر ATV71
برای جلوگیری از بروز خطا در اینورتر ATV71 اشنایدر موارد زیر را بررسی کنید:
- تهویه مناسب تابلو برق
- تنظیم صحیح پارامترهای موتور
- استفاده از کابل مناسب موتور
- بررسی اتصال زمین
- استفاده از مقاومت ترمز در کاربردهای اینرسی بالا
💡 توصیه کاربردی الکترومارکت:
اگر خطایی تکراری (مانند خطای OCF یا OBF) بیش از سه بار رخ داد، از ریست ساده خودداری کرده و سیستم را خاموش کنید تا بررسی فنی کامل انجام شود.
تیم فنی الکترومارکت میتواند با تحلیل دقیق جریان، ولتاژ و بار موتور، علت خطا را شناسایی و رفع کند.
🧾 یادداشتهای فنی تکمیلی
-
پس از رفع هر خطا، میتوانید با نگه داشتن دکمه STOP/RESET برای ۳ ثانیه، درایو را ریست کنید.
-
در صورت تنظیم کنترل از راه دور، ریست باید از طریق ورودی دیجیتال پیکربندی شود.
-
در صورت بروز خطاهای مکرر در بخش باس DC، مقاومت ترمز و چوک ورودی را بررسی کنید.
🔴 مزایا و معایب درایو اشنایدر ATV71
مزایا
- کنترل برداری دقیق برای موتورهای AC
- مناسب برای کاربردهای صنعتی سنگین
- پشتیبانی از موتورهای سنکرون و آسنکرون
- امکان استفاده از شبکههای صنعتی مختلف
- دقت بالا در کنترل سرعت و گشتاور
معایب
- تنظیمات پیشرفته و نسبتاً پیچیده برای کاربران مبتدی
- قیمت بالاتر نسبت به برخی مدلهای سادهتر
- نیاز به دانش فنی برای تنظیم پارامترهای پیشرفته
🧰 نکات نگهداری و بازبینی دورهای درایو اشنایدر ATV71
درایو ATV71 برای کارکرد مداوم در شرایط صنعتی طراحی شده است، با این حال نگهداری دورهای باعث افزایش عمر و جلوگیری از خرابی زودرس میشود.
بازبینی ماهانه
-
وضعیت تهویه و تمیزی فیلترها را بررسی کنید.
-
از عملکرد صحیح فن خنککننده مطمئن شوید.
-
اتصالات زمین و کابلهای قدرت را از نظر شل بودن یا اکسید شدن بررسی کنید.
بازبینی فصلی (هر ۶ ماه)
-
ولتاژ باس DC را اندازهگیری کنید و از مقدار نرمال بودن (حدود ۱٫۴ برابر ولتاژ RMS ورودی) اطمینان حاصل کنید.
-
مقاومت ترمز و دمای آن را در حین توقفهای ناگهانی بررسی کنید.
-
پارامترهای کنترلی مانند ACC، DEC، nCr و UnS را با تنظیمات اولیه مقایسه کنید تا از تغییرات ناخواسته جلوگیری شود.
نگهداری سالیانه
-
داخل درایو را از گردوغبار با هوای خشک تمیز کنید.
-
خازنهای DC را از نظر بادکردگی یا نشتی الکترولیت بررسی کنید.
-
نرمافزار درایو (Firmware) را در صورت نیاز بهروزرسانی کنید.
💡 توصیه الکترومارکت:
در صورت توقف غیرمنتظره یا صدای غیرعادی در موتور، از ریست کردن مکرر خودداری کرده و با کارشناسان ما برای بررسی بار، موتور و کارتهای آپشن تماس بگیرید.
⚙️ سازگاری الکترومغناطیسی (EMC) و نصب صنعتی
رعایت اصول EMC تضمین میکند که درایو ATV71 باعث تداخل در سایر تجهیزات نگردد و خود نیز از نویزهای محیطی در امان بماند.
اصول کلیدی EMC
-
تمام کابلهای قدرت، موتور و کنترل باید دارای شیلد فلزی باشند.
-
شیلدها باید در هر دو انتها به زمین متصل شوند.
-
فاصله بین مسیرهای قدرت و کنترل باید حداقل ۲۰ سانتیمتر باشد.
-
برای مدلهای بالاتر از ۴۵kW، استفاده از چوک ورودی سهفاز (Line Reactor) ضروری است.
-
کابلهای ارتباطی (Modbus، CANopen و…) را از مسیر کابلهای قدرت جدا عبور دهید.
🌐 نکات مربوط به سیستمهای زمین و شبکه
درایو ATV71 در دو نوع سیستم قابل نصب است:
سیستم IT (خنثی ایزوله یا امپدانس زمینشده)
-
نیاز به مانیتور عایق دائمی (IMD) دارد، مانند مدل Merlin Gerin XM200.
-
در صورت استفاده از فیلتر EMC داخلی، باید قابلیت نظارت IMD را تطبیق دهید.
سیستم گوشهزمینشده (Corner Grounded)
-
برای مدلهای با ولتاژ ۵۰۰–۶۹۰V (سری Y) باید لینک فیلتر RFI قطع شود.
-
در مدلهای ۰٫۷۵ تا ۴۰N4، در صورت قطع فیلتر، فرکانس سوئیچینگ نباید بیش از ۴kHz تنظیم شود.
⚠️ هشدار فنی:
اتصال مدلهای ATV71H U22Y تا D90Y به سیستم گوشهزمینشده بدون جدا کردن لینک RFI میتواند منجر به سوختن IGBT شود.

🔒 ایمنی و حفاظت کاربر
-
در زمان نگهداری، فقط افرادی که آموزش فنی دیدهاند مجاز به باز کردن درایو هستند.
-
قبل از لمس ترمینالها، ۱۵ دقیقه صبر کنید تا خازنهای باس DC تخلیه شوند.
-
در پروژههایی با نیاز ایمنی بالا (مانند بالابرها یا آسانسورهای صنعتی)، از مدار Power Removal مطابق استاندارد ISO 13849-1 SIL2 استفاده کنید.
🧩 توصیههای نصب در محیطهای صنعتی سنگین
-
در محیطهای دارای گردوغبار، از محفظه IP54 یا بالاتر استفاده کنید.
-
در دماهای بالای ۵۰°C از فن خارجی یا کولر تابلو بهره ببرید.
-
برای کاهش توان تلفشده در محفظه، میتوانید از کیت نصب فلنج ضد گردوغبار و رطوبت (VW3A9501…509) استفاده کنید که باعث ارتقاء درجه حفاظت درایو به IP54 میشود.
سوالات متداول درباره درایو اشنایدر ATV71
آیا درایو ATV71 برای موتور تکفاز مناسب است؟
خیر، این درایو برای موتورهای سهفاز طراحی شده است.
نرمافزار تنظیم درایو ATV71 چیست؟
برای تنظیم و پیکربندی این درایو میتوان از نرمافزار SoMove استفاده کرد.
چگونه سرعت موتور را تنظیم کنیم؟
سرعت موتور میتواند از طریق ورودی آنالوگ، کیپد درایو یا شبکههای صنعتی کنترل شود.
چگونه تنظیمات درایو را ریست کنیم؟
در منوی تنظیمات درایو گزینه Factory Reset وجود دارد که با استفاده از آن میتوان تنظیمات را به حالت پیشفرض بازگرداند.
خدمات الکترومارکت
در الکترومارکت، خدمات کاملی شامل:
- مشاوره فنی رایگان: انتخاب بر اساس کاربرد.
- نصب و راهاندازی: توسط تکنسینهای مجاز.
- تعمیر و نگهداری: با قطعات اصلی و گارانتی.
- تامین لوازم جانبی
با تماس با کارشناسان الکترومارکت، پروژهتان را بهینه کنید و از پشتیبانی 24/7 بهره ببرید.با تماس با کارشناسان الکترومارکت، پروژهتان را بهینه کنید و از پشتیبانی 24/7 بهره ببرید.






