Optidrive E2: معرفی درایو Invertek E2 برای کنترل موتورهای صنعتی
ارائه شده توسط الکترومارکت
درایو INVERTEK E2 یک اینورتر AC در کلاس ورودی سطحی است که با طراحی بسیار ساده، قابلیت تنظیم آسان و عملکرد پیشرفته، در صنایع مختلف کاربرد گستردهای دارد. این محصول که توسط شرکت بینالمللی Invertek Drives L.T.D تولید شده، به دلیل طراحی امروزیاش در دستهی نسل چهارم درایوهای Invertek قرار میگیرد.
💡 اگر قصد خرید درایو یا خرید اینورتر برای کاربردهای عمومی و صنعتی دارید، درایو Invertek E2 یکی از بهترین گزینههای اقتصادی و پایدار است. همچنین الکترومارکت امکان تعمیر درایو و تأمین خرید مقاومت ترمز مناسب این درایو را نیز فراهم کرده است.
۱. نصب مکانیکی (Mechanical Installation)
۱.۱. نکات عمومی نصب (General)
برای اطمینان از عملکرد صحیح و افزایش طول عمر درایو Invertek E2، رعایت نکات زیر ضروری است:
- محل نگهداری باید تمیز، خشک و در بازه دمایی نگهداری از ۴۰- درجه سانتیگراد تا ۶۰+ درجه سانتیگراد باشد.
- درایو را روی سطحی صاف، عمودی، نسوز و بدون لرزش نصب کنید.
- در صورت نیاز به درجه حفاظت (IP) مشخص، نصب باید مطابق EN60529 انجام شود.
- محیط نصب باید دارای Pollution Degree 1 یا 2 باشد.
- سایزهای ۱ و ۲ درایو Optidrive قابلیت نصب روی DIN Rail را دارند.
- قبل از راهاندازی، از سفت بودن تمامی ترمینالها با گشتاور مناسب اطمینان حاصل کنید.
📞 اگر قصد خرید درایو یا مشاوره برای انتخاب مدل مناسب سیستم صنعتی خود را دارید، کارشناسان الکترومارکت آماده راهنمایی شما هستند.
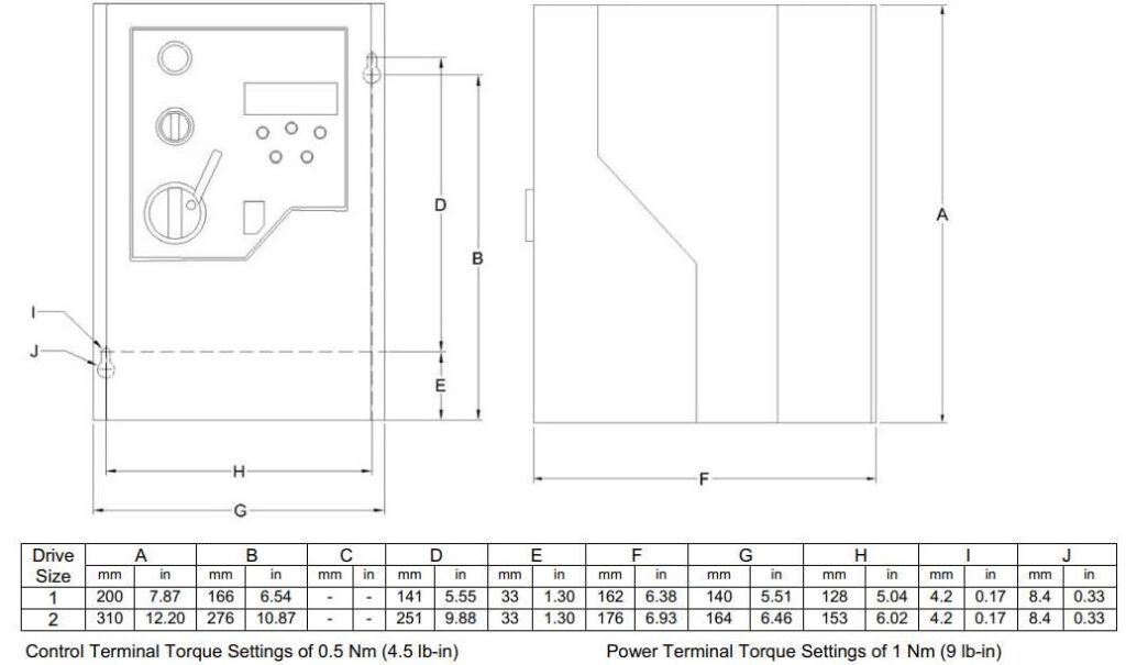
۱.۲. ابعاد و روش نصب (Mechanical Dimensions & Mounting).
جدول زیر ابعاد دقیق درایوهای Optidrive E2 سایز ۱ و ۲ را نشان میدهد:
| Drive Size | A (mm) | B (mm) | C (mm) | D (mm) | E (mm) | F (mm) | G (mm) | H (mm) | I (mm) | J (mm) |
| Size 1 | 173 | 160 | 109 | 162 | 5 | 123 | 82 | 50 | 5.5 | 10 |
| Size 2 | 221 | 207 | 137 | 209 | 5.3 | 150 | 109 | 63 | 5.5 | 10 |
گشتاور سفت کردن ترمینالها:
- ترمینال کنترل: 0.5 Nm
- ترمینال قدرت: 1 Nm
برای دریافت مشاوره جهت انتخاب سایز مناسب و خرید اینورتر Optidrive E2 میتوانید با الکترومارکت تماس بگیرید.
۱.۳. نصب درون تابلو یا محفظه (Enclosure Mounting)
در کاربردهایی که نیاز به درجه حفاظت بالاتر از IP20 وجود دارد، درایو Invertek E2 باید داخل یک تابلوی فلزی مناسب نصب شود. نکات ضروری:
- محفظه باید از جنس رسانای حرارتی خوب باشد.
- در تابلوهای دارای تهویه، باید ورودی هوا در پایین درایو و خروجی هوا در بالا باشد تا گردش هوای مؤثر انجام شود.
- در محیطهای دارای گرد و غبار، استفاده از فیلتر مناسب و سیستم تهویه اجباری توصیه میشود.
- در محیطهای با رطوبت یا مواد خورنده، از محفظه غیر هواکش و آببندیشده استفاده کنید.

جریان هوای توصیهشده (Recommended Airflow):
| Drive Size | X (mm) | Y (mm) | Z (mm) | Airflow (CFM) |
| Size 1 | 50 | 50 | 33 | 11 |
| Size 2 | 75 | 50 | 46 | 11 |
- دمای محیط باید همواره در محدوده مجاز نگه داشته شود.
۲. سیمکشی قدرت (Power Wiring)
۲.۱. اتصال زمین (Grounding the Drive)
⚠️ هشدار ایمنی:
- درایو دارای خازنهای ولتاژ بالا است. پس از قطع برق ورودی، حداقل ۱۰ دقیقه صبر کنید تا خازنها تخلیه شوند. عدم رعایت این نکته میتواند منجر به صدمات شدید یا خطرات جانی شود.
- نصب و سیمکشی فقط باید توسط تکنسین متخصص برق صنعتی انجام شود.
نکات اتصال زمین (Grounding Guidelines):
- ترمینال زمین هر درایو باید بهصورت مستقل و مستقیم به شینه زمین اصلی اتصال یابد.
- از حلقهکردن زمین بین چند دستگاه خودداری کنید.
- در سیستمهایی که از مانیتورینگ خطای زمین استفاده میکنند، باید از Type B استفاده شود.
- جهت رعایت استاندارد UL، استفاده از ترمینال حلقهای UL approved توصیه میشود.
🛠️ اگر به خدمات تخصصی تعمیر درایو یا تست سیستم نیاز دارید، تیم الکترومارکت آماده ارائه خدمات است.
۲.۲. نکات مهم سیمکشی (Wiring Precautions)
- اتصالها را مطابق بخش ۲.۳ انجام دهید.
- حتماً موتور با ولتاژ سازگار با درایو تنظیم شده باشد.
- کابل قدرت باید سه رشته PVC شیلددار باشد و مطابق استانداردهای صنعت نصب شود.
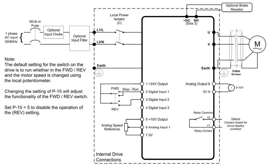
۲.۳. دیاگرام اتصالات (INVERTEK E2 Connection Diagram )

۲.۴. اتصال درایو و موتور (Drive & Motor Connections)
- منبع تغذیه تکفاز به ترمینالهای L1/L و L2/N متصل میشود.
- خروجی موتور به U و V متصل میگردد.
- در سایز ۲، درایو دارای ترانزیستور ترمز دینامیکی است و در صورت نیاز میتوان خرید مقاومت ترمز و اتصال آن به +DC و BR را انجام داد.
- حتماً از حفاظت حرارتی مناسب برای مقاومت ترمز استفاده شود.

۲.۵. موتورهای سازگار (Compatible Motors)
این درایو برای استفاده با موتورهای زیر طراحی شده است:
- Permanent Split Capacitor (PSC – Cap Run)
- Shaded Pole
- در صورت نیاز به تغییر جهت چرخش موتور، به راهنمای سازنده موتور مراجعه کنید.
📞 اگر قصد خرید درایو Optidrive E2، خرید اینورتر صنعتی، خرید مقاومت ترمز یا استفاده از خدمات تعمیر درایو دارید، همین حالا با الکترومارکت تماس بگیرید. کارشناسان ما به شما در انتخاب، نصب و راهاندازی کامل سیستم کمک خواهند کرد.
3. اتصالات و رابط کاربری درایو Invertek E2
3.۱. اتصالات ترمینال کنترل (Control Terminal Connections – Default Connections)
| ترمینال / سیگنال | توضیحات |
| +24V | خروجی +24 ولت برای کاربر، 100 میلیآمپر |
| Digital Input 1 | ورودی دیجیتال با منطق مثبت. محدوده ولتاژ «Logic 1»: از 8 تا 30 ولت DC |
| Digital Input 2 | ورودی دیجیتال. محدوده ولتاژ «Logic 0»: از 0 تا 2 ولت DC |
| Digital Input 3 / Analog Input 2 | دیجیتال: 8 تا 30 ولت، آنالوگ: 0 تا 10 ولت، 0 تا 20mA یا 4 تا 20mA |
| +10V | خروجی +10 ولت برای کاربر، 10mA با حداقل مقاومت 1k |
| Analog Input 1 / Digital Input 4 | آنالوگ: 0 تا 10 ولت، 0 تا 20mA یا 4 تا 20mA، دیجیتال: 8 تا 30 ولت |
| 0V | زمین مشترک کاربر (متصل به ترمینال 9) |
| Analog Output / Digital Output | آنالوگ: 0 تا 10 ولت، حداکثر 20mA، دیجیتال: 0 تا 24 ولت |
| 0V | زمین مشترک کاربر (متصل به ترمینال 7) |
| Relay Common | مشترک رله |
| Relay NO Contact | کانتکت NO (نرمال باز) با ظرفیت: AC: 250V / 6A یا DC: 30V / 5A |
3.۲. اتصال داده RJ45 (RJ45 Data Connection)
- برای درایوهایی با ورژن نرمافزار V1.00 تا V1.02
- برای درایوهایی با ورژن V1.03 و بالاتر
برای مشاهدهٔ Modbus RTU Register Map، به Optidrive E2 Advanced User Guide مراجعه کنید. در حالت کنترل MODBUS، ورودیهای آنالوگ و دیجیتال مشابه توضیحات بخش(MODBUS Control Mode – P12 = 3 یا 4) قابل تنظیم هستند.
4. کار با دستگاه (Operation)
4.۱. مدیریت صفحهکلید (Managing the Keypad)
درایو Optidrive E2 از طریق کیپد و نمایشگر تنظیم و مانیتور میشود:
| کلید | عملکرد |
| NAVIGATE | نمایش اطلاعات لحظهای، ورود و خروج از حالت تنظیمات پارامترها، و ذخیره تغییرات |
| UP | افزایش سرعت در حالت بلادرنگ یا افزایش مقدار پارامتر |
| DOWN | کاهش سرعت یا مقدار پارامتر |
| RESET / STOP | ریست درایو در صورت Trip، توقف در حالت Keypad Control |
| START | استارت درایو یا معکوس کردن جهت در حالت دوطرفه (Bi-directional) |
این بخش برای کاربران فنی که قصد خرید درایو Invertek یا تعمیر درایو دارند اهمیت زیادی دارد.
4.۱.۱. تغییر پارامترها (Changing Parameters)
- دکمه NAVIGATE را بیش از ۱ ثانیه نگه دارید تا نمایشگر P 01 را نشان دهد.
- با یک بار فشار، مقدار پارامتر نشان داده میشود.
- مقدار را با کلیدهای UP/DOWN تغییر دهید.
- برای ذخیره، دوباره NAVIGATE را بزنید.
- برای بازگشت به حالت Real-time، ۱ ثانیه NAVIGATE را نگه دارید.
4.۱.۲. ریست تنظیمات کارخانه (Reset Factory Default Settings)
- دکمههای UP + DOWN + RESET را بیش از ۲ ثانیه نگه دارید.
- پیام تأیید ظاهر میشود.
- با فشار دکمه عملیات ریست انجام میشود.
برای کاربرانی که اینورتر Optidrive E2 را تازه خریداری کردهاند یا قصد تعمیر درایو دارند، این قابلیت کاربردی است.
4.۲. کنترل ترمینالی (Terminal Control)
در حالت کارخانه، درایو روی Terminal Control Mode تنظیم شده است.
مراحل راهاندازی:
- اتصال صحیح موتور به درایو.
- ورود اطلاعات موتور: ولتاژ نامی (P-07)، جریان نامی (P-08)، فرکانس نامی (P-09).
- اتصال کلید کنترل بین ترمینالهای ۱ و ۲.
- اتصال پتانسیومتر (1k–10k) بین ترمینالهای ۵ و ۷، خروجی آن به ترمینال ۶.
- پس از روشنکردن دستگاه، نمایشگر STOP نشان میدهد.
- با بستن اتصال ترمینال ۱–۲ درایو فعال میشود.
- چرخاندن پتانسیومتر باعث افزایش فرکانس تا 50Hz (مقدار پیشفرض) میشود.
- برای توقف، اتصال ۱–۲ را باز کنید.
این مراحل برای تکنسینهایی که قصد نصب و راهاندازی اینورتر دارند بسیار حیاتی است. برای دریافت پشتیبانی یا خرید تجهیزات جانبی مثل مقاومت ترمز، با الکترومارکت تماس بگیرید.
4.۳. کنترل با کیپد (Keypad Control)
برای کنترل از طریق کیپد، P-12 = 1 تنظیم شود.
مراحل:
- اتصال موتور همانند حالت ترمینالی.
- فعال کردن درایو با بستن ترمینال ۱–۲.
- فشردن START برای آغاز حرکت.
- افزایش سرعت با UP و کاهش سرعت با DOWN.
- با STOP موتور آزادانه متوقف میشود.
- برای پیشتنظیم سرعت، در حالت توقف کلید UP را فشار دهید.
- فشردن START باعث شتابگیری تا سرعت هدف میشود.
در صورت نیاز به راهاندازی حرفهای، بخش پشتیبانی الکترومارکت آماده است.
5. پارامترها (Parameters)
5.۱. پارامترهای استاندارد (Standard Parameters)
در این بخش تمام پارامترهای اصلی شامل موارد زیر قابل تنظیم هستند:
- P-01 حداکثر سرعت
- P-02 حداقل سرعت
- P-03 زمان شتاب
- P-04 زمان کاهش سرعت
- P-05 حالت توقف
- P-07 تا P-11 تنظیمات موتور
- P-12 حالت کنترل (Terminal / Keypad / MODBUS / PI)
6. عملکرد درایو و محیط کاربری (Control & Interface)
6.۱. مدهای مختلف کنترل (Control Modes)
درایو اینورتر Invertek E2 قابلیت کنترل موتور را در سه حالت زیر ارائه میدهد:
- V/F Control – کنترل ولت بر فرکانس:
- این مد کنترل که به صورت استاندارد داخل درایو قرار دارد، برای موتورهایی با بار عمومی، پمپها، فنها و سیستمهایی با نیاز کنترلی ساده مناسب است.
- Slip Compensation – جبران لغزش:
- مناسب برای کاربردهایی که نیاز به گشتاور یکنواخت دارند. این ویژگی باعث میشود سرعت موتور تحت بار ثابت بماند.
- Energy Optimisation – بهینهسازی مصرف انرژی:
- این حالت مخصوص کاهش مصرف انرژی در بارهای سبک است و برای سیستمهایی مانند پمپ و فن بسیار مؤثر است.
در پروژههای صنعتی که هزینه انرژی اهمیت دارد، این قابلیت میتواند هزینه برق را به شکل محسوسی کاهش دهد. اگر نیاز به انتخاب بهترین حالت کنترلی برای سیستم خود دارید، الکترومارکت میتواند مشاوره تخصصی ارائه دهد.
6.۲. ورودی فرکانس برای فرکانسدهی کنترلشده (Controlled Frequency Input)
درایو Invertek E2 قابلیت دریافت سیگنال ورودی فرکانس تنظیمشده را داراست که از طریق آن میتوان سرعت موتور را بر اساس سیگنال ورودی دقیق تنظیم کرد. این ویژگی برای سیستمهایی با کنترل حلقه باز بسیار مناسب است.
6.۳. محیط کاربری و جعبه ترمینال (Operator Interface)
طراحی پنل جلویی بسیار ساده و در عین حال کاربردی است.
پیشنهاد میشود هنگام خرید اینورتر به سادگی کاربری و دسترسی به منوها نیز توجه کنید.
نمایشگر وضعیت LED Bar Graph:
این بخش وضعیت کاری درایو را با چند حالت نمایش میدهد، از جمله:
- READY – آماده برای شروع
- RUN – در حال کار
- TRIP – وقوع خطا
- STALL – توقف
- BRAKING – وضعیت ترمز
- REMOTE – کنترل از راه دور فعال است
- HEAT – وضعیت حرارتی
- POWER – روشن بودن دستگاه
کلیدهای کنترلی پنل (Control Keys):
پنل دارای شش کلید اصلی است:
- RUN – شروع حرکت (فقط در حالت Local):
- فعال کردن درایو
- افزایش فرکانس در هنگام تست دستی
- دکمه START که با یک خط روی دایره مشخص شده معمولاً روی صفحه کلیدهای محلی استفاده میشود.
- STOP / RESET – توقف و ریست:
- توقف موتور
- ریست انواع خطاهای درایو
- ورودی خارجی برای توقف اضطراری
- حالت stop/res تعیین میکند که کدام اولویت دارد (stop همیشه مقدّم است).
- AUTO/MAN – انتخاب حالت دستی یا خودکار:
- تغییر حالت بین Local و Remote
- امکان تنظیم فرکانس در حالت دستی با کلیدهای ▲▼
- در حالت دستی، چراغ “MAN” روشن میشود و کنترل سرعت توسط کاربر انجام میگیرد.
- ▲ / ▼ – کلیدهای افزایش و کاهش:
- برای افزایش یا کاهش مقدار فرکانس مرجع استفاده میشوند.
در هنگام خرید درایو توجه به این سادگی تنظیم بسیار مهم است.
6.۴. خط فرمانهای الکتریکی ورودی و خروجی (Electrical I/O Terminals)
درایو Invertek E2 در بخش ترمینال شامل ورودیها و خروجیهای دیجیتال و آنالوگ زیر است:
| شماره ترمینال | نام و عملکرد | مشخصات و کاربرد |
| ۱ | Run / Stop Input | برای شروع یا توقف درایو از طریق ورودی دیجیتال (معمولاً توسط کنترل خارجی). حداقل طول پالس: 200 میلیثانیه. سطح ولتاژ ورودی: 24 ولت DC. حالتهای کنترلی قابل انتخاب شامل: Run/Stop، Jog، Fault Reset و Auto/Manual Select. |
| ۲ | Analog Input (AI1) | این ورودی آنالوگ برای کنترل سرعت استفاده میشود و سیگنالهای 0 تا 10V، 4 تا 20mA و 0 تا 24V (در برخی تنظیمات) را میپذیرد. |
| ۳ | Analog Ground | مرجع سیگنال ورودی AI1 است. |
| ۴ | Relay Output | رله خروجی قابل برنامهریزی: Drive Healthy، Running، At Frequency، Zero Speed، Trip، Active Braking. |
این قابلیت برای اتصال تجهیزات صنعتی بسیار مهم است و هنگام خرید اینورتر باید به تعداد و نوع خروجیها توجه کرد.
6.۵. سیستم هوشمند ترمزگیری (Smart Brake Control)
درایو Invertek E2 دارای کنترل داخلی ترمز و پشتیبانی از مقاومت ترمز (Brake Resistor) است.
اگر قصد خرید مقاومت ترمز مناسب برای اینورتر Invertek E2 را دارید، تیم الکترومارکت راهنمای انتخاب دقیق و تخصصی ارائه میدهد.
7. حفاظتها و خطاهای درایو (Drive Protections & Fault Codes)
7.۱. مجموعه حفاظتها
درایو دارای مجموعه کامل محافظتهاست، از جمله: اضافهولتاژ، کمبود ولتاژ، اضافهجریان، Over Temperature، Earth Fault و Motor Overload. این موارد باعث طول عمر بالا و کاهش نیاز به تعمیر درایو میشود.
7.۲. عیبیابی (Troubleshooting)
| کد خطا | توضیحات (Description) | اقدام اصلاحی (Corrective Action) |
| LOAD | Factory Default Parameters Have Been Loaded (پارامترهای پیشفرض کارخانه بارگذاری شدهاند.) | دکمه STOP را فشار دهید. درایو آماده پیکربندی برای کاربرد مورد نظر است. (در صورت نیاز به تنظیمات تخصصی میتوانید از خدمات تعمیر درایو و تنظیم درایو الکترومارکت استفاده کنید.) |
| OC | Over Current on Drive Output (اضافهجریان در خروجی درایو.) | ۱. اگر موتور در سرعت ثابت کار میکند: احتمال اضافهبار یا خرابی مکانیکی. ۲. اگر موتور در حال شتابگیری / کاهش سرعت است: زمان شتاب (P-03) یا کاهش سرعت (P-04) بسیار کوتاه است. مقادیر P-03 و P-04 را افزایش دهید. ۳. احتمال خرابی کابل بین درایو و موتور. |
| OL | Drive Overload Trip (درایو اورلود کرده است.) | ۱. زمانهایی که نقطههای اعشار چشمک میزنند را بررسی کنید (نمایشدهندهی اورلود). ۲. شیب شتابگیری (P-03) را افزایش دهید. ۳. بار موتور را کاهش دهید و بار مکانیکی را بررسی کنید. |
| BR-OC | Brake Channel Over Current (اضافهجریان در مدار مقاومت ترمز.) | ۱. کابلکشی مقاومت ترمز را بررسی کنید. ۲. مقدار اهم مقاومت ترمز را کنترل کنید. ۳. مطمئن شوید مقدار حداقل مقاومت مطابق جدول انتخاب شده است. (برای خرید مقاومت ترمز مناسب میتوانید از الکترومارکت راهنمایی بگیرید.) |
| OL-BR | Brake Resistor Overload (اضافهبار روی مقاومت ترمز.) | ۱. افزایش زمان کاهش سرعت (Decel Time). ۲. کاهش اینرسی بار. ۳. اضافه کردن مقاومت ترمز موازی. |
| PS-FLT | Internal Power Stage Fault (عیب داخلی بخش قدرت درایو.) | ۱. سیمکشی موتور را بررسی کنید (اتصال کوتاه فاز به فاز یا فاز به زمین). ۲. دمای محیط درایو را بررسی کنید. |
| OV | Over Voltage on DC Bus (اضافه ولتاژ روی باس DC.) | ۱. بررسی ورودی برق. ۲. افزایش مقدار P-04 (زمان کاهش سرعت). |
| UV | Under Voltage on DC Bus (کمبود ولتاژ باس DC.) | ۱. این خطا هنگام قطع برق بهصورت روتین رخ میدهد. ۲. اگر حین کار رخ دهد، ولتاژ ورودی برق را بررسی کنید. |
| OH | Heatsink Over Temperature (هیتسینک بیشازحد گرم شده است.) | ۱. محیط نصب درایو را بررسی کنید. ۲. تهویه یا فاصله نصب را افزایش دهید. |
| UT | Under Temperature (دمای محیط کمتر از منفی ۱۰ درجه سانتیگراد است.) | Under Temperature (دمای محیط کمتر از منفی ۱۰ درجه سانتیگراد است.) |
| FLT-TH | Faulty Thermistor on Heatsink (ترمیستور هیتسینک خراب است.) | با الکترومارکت تماس بگیرید. |
| EXT | External Trip (Digital Input 3) (ورودی قطع خارجی فعال شده است.) | ۱. بررسی کنید کنتاکت نرمالکلوز بهدلیل خاصی باز نشده باشد. ۲. اگر ترمیستور موتور متصل است، احتمال داغ شدن موتور وجود دارد. |
| COMS | Comms Loss Trip (قطع ارتباط با دستگاههای خارجی.) | ۱. لینک ارتباطی با PLC یا شبکه Modbus را بررسی کنید. ۲. مطمئن شوید هر درایو آدرس یکتای خود را دارد. |
| M-FLT | Internal Memory Fault (خطای حافظه داخلی. پارامتر ذخیره نشده و مقادیر پیشفرض بارگذاری شدهاند.) | مجدداً تلاش کنید. اگر تکرار شد با الکترومارکت تماس بگیرید. |
| AI-FLT | Analog Input Current Out of Range (جریان ورودی آنالوگ خارج از محدوده تعریفشده P-16 و P-47 است.) | جریان سیگنال را بررسی کنید. |
| INT | Internal Drive Fault (عیب داخلی درایو.) | تماس با الکترومارکت |
8. دادههای فنی (Technical Data)
8.۱. شرایط محیطی (Environmental)
| پارامتر | مقدار |
| دمای کاری | ۰ تا ۵۰ درجه سانتیگراد (بدون یخزدگی و رطوبت تقطیر شده) |
| دمای نگهداری | ۴۰- تا ۶۰+ درجه سانتیگراد |
| حداکثر ارتفاع | 2000 متر |
| کاهش توان (Derating) | ۱٪ به ازای هر 100 متر بالای 1000 متر |
| حداکثر رطوبت | 95٪ غیرتقطیری |
8.۲. جداول نامی (Rating Tables)
جدول ورودی ۱۱۰-۱۱۵V تکفاز (±10%)
| kW | HP | Frame Size | Nominal Input Current | Fuse/MCB | Cable Size | Nominal Output Current | 150% Output 60s | Motor Cable Max Length | Min Brake Res |
| 0.37 | 0.5 | 1 | 12.4A | 10A | 1.5 mm² | 7A | 10.5A | 25m | – |
| 0.75 | 1 | 2 | 16.1A | 16A | 2.5 mm² | 10.5A | 15.8A | 50m | – |
جدول ورودی ۲۰۰-۲۴۰V تکفاز (±10%)
| kW | HP | Frame Size | Input A | Fuse/MCB | Supply Cable | Output A | 150% Output | Motor Cable Length | Min Brake Res |
| 0.37 | 0.5 | 1 | 6.8A | 6A | 1.5 mm² | 4.3A | 6.5A | 25m | – |
| 0.75 | 1 | 1 | 12.8A | 10A | 1.5 mm² | 7A | 10.5A | 25m | – |
| 1.1 | 1.5 | 2 | 16.2A | 16A | 2.5 mm² | 10.5A | 15.8A | 50m | 47Ω |
فرکانس خروجی: 0 تا P-01 (حداکثر 500Hz)
8.۲.۳. حداکثر مقادیر ورودی جهت تأییدیه UL
| Drive Rating | Max Supply Voltage | Max Short Circuit Current |
| 115V – 0.5 تا 1HP | 120V AC | 5kA AC |
| 230V – 0.37 تا 1.1kW | 240V AC | 5kA AC |
تمامی درایوهای جدول فوق قابل استفاده در مدارهایی هستند که مقدار اتصالکوتاه آنها بیش از مقادیر تعیینشده نباشد.
9. درایوهای IP55 / NEMA 12
9.۱. نصب مکانیکی (Mechanical Installation)
- Optidrive را تا زمان نیاز داخل جعبه نگه دارید.
- محل نصب باید عمودی، صاف، بدون لرزش و مقاوم به شعله باشد.
- نصب در محیط Pollusion Degree 1 یا 2.
- مدل IP55 مخصوص استفاده داخل سالن است.
- تمام ترمینالها باید با گشتاور استاندارد بسته شوند.
9.۲. ابعاد و نصب (Mechanical Dimensions & Mounting)

- درایوهای IP55/NEMA12 میتوانند کنار هم نصب شوند.
- اگر بالای دستگاه گرمازا نصب شود، حداقل فاصله عمودی 150mm باید رعایت شود.
9.۳. سایز گلند و قفل (Gland Sizes & Lock Off)
- برخی گلندها نیاز به حذف فلنج جهت نصب صحیح دارند.
- هرگونه کانال فلزی باید ارت مناسب داشته باشد.
- سایز گلند ورودیها و خروجیها مطابق جدول ذکر شده است.
- در مدلهای سوئیچدار، کلید اصلی را میتوان با پدلاک 20mm در وضعیت خاموش قفل کرد.
9.۴. باز کردن کاور ترمینال
نحوه بازکردن کاور برای دسترسی به ترمینالها مطابق تصویر و توضیحات اصلی.

9.۵. دیاگرام اتصال (Connection Diagram)


9.۶. استفاده از کلید REV/0/FWD
این کلید میتواند برای کاربردهای مختلف تنظیم شود از جمله:
- Hand / Off / Auto
- Local / Remote
- Preset Speed Control
- Jog Mode
خدمات الکترومارکت
در الکترومارکت، خدمات کاملی شامل:
- مشاوره فنی رایگان: انتخاب بر اساس کاربرد.
- نصب و راهاندازی: توسط تکنسینهای مجاز.
- تعمیر و نگهداری: با قطعات اصلی و گارانتی.
- تامین لوازم جانبی
با تماس با کارشناسان الکترومارکت، پروژهتان را بهینه کنید و از پشتیبانی 24/7 بهره ببرید.با تماس با کارشناسان الکترومارکت، پروژهتان را بهینه کنید و از پشتیبانی 24/7 بهره ببرید.